CASAS MODULARES
Innovación y diseño a tu alcance
Innovación y diseño a tu alcance
Las casas modulares representan la evolución en construcción residencial. Los sistemas de construcción industrializada en sus diversas variantes, permiten reducir tiempos de obra, optimizar costos y garantizar una mayor calidad, respecto a la construcción tradicional.
En Modulhaus nos especializamos en sistema modular volumétrico en 3D, que consiste en la fabricación en nuestra planta industrial de los módulos que conforman la vivienda, posteriormente estos módulos son transportados y ensamblados en el terreno, reduciendo al máximo el trabajo en obra.
Este sistema de construcción offsite, nos permite reducir los plazos de entrega al poder realizar en simultáneo la fabricación de los módulos en planta y la cimentación en obra. Además ejecutar una mayor parte del proceso constructivo en una planta industrial permite reducir los imprevistos propios de las obras.
Descubre el placer de apostar con estilo y ambición dentro de frumzi casino españa. Los incentivos activos elevan cada sesión de juego, mientras el prestigio de la sala acompaña tu estrategia y tú persigue el gran premio con cabeza fría. Ahora es tu momento, juega con confianza y domina la mesa.
Ahorro en tiempos, plazo promedio de ejecución de una vivienda entre 3 y 5 meses.
Precio cerrado dese un inicio, sin los imprevistos propios de la construcción tradicional.
Menor consumo de recursos, riesgo de accidentes, generación de ruido o polvo en obra.
Los materiales y acabados son completamente personalizables por parte del cliente.
Todas nuestras casas están calculadas conforme a la norma peruana E.030 de sismoresistencia.
Estrictos controles de calidad en el proceso de fabricación en planta permiten minimizar riesgos.
Disponemos de modelos de casas modulares, así como también realizamos proyectos personalizados según las necesidades y gustos del cliente. A continuación mostramos algunos ejemplos de modelos con sus precios referenciales. Consulta con nosotros para aclarar cualquier duda.
Los precios indicados se consideran llave en mano. Incluyen transporte y montaje en Lima metropolitana, otras ubicaciones consultar. Incluidos impuestos. Se ofrecen servicios adicionales como la elaboración de proyecto de acuerdo a la normativa vigente firmado por arquitectos e ingenieros colegiados, así como la gestión de la licencia de construcción ante el condominio o la municipalidad.
Es posible realizar modificaciones en cualquiera de los modelos, ya sea en tamaño o distribución, así como materiales o acabados. En Modulhaus contamos con un equipo de arquitectos e ingenieros con amplia experiencia siempre a su disposición.
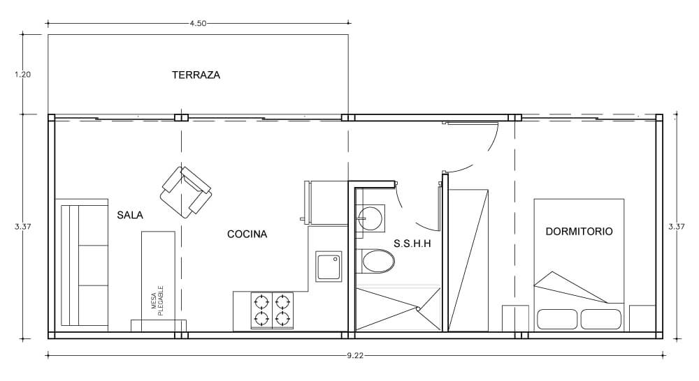
Berlín: Calidez, luz y funcionalidad en cada rincón!
Moderno, compacto y funcional. El modelo Berlín destaca por sus acabados limpios y sofisticados, y por incorporar una práctica terraza elevada que protege la vivienda de filtraciones, ideal para casas de campo o zonas con lluvias.
Es uno de los modelos más pequeños de nuestra línea de casas modulares, optimizado para ofrecer todo lo necesario en un espacio reducido: cuenta con 1 dormitorio, 1 baño, sala-comedor, kitchenette, lavandería y la terraza integrada. Una solución inteligente y estilizada para quienes valoran lo esencial sin renunciar al confort.
Área total: Desde 36 m² (incluye terraza).
Dormitorios: 01
Baños: 01
Cocina: Integrada
Gracias a su diseño modular, el modelo Berlín puede transportarse y montarse rápidamente en terrenos de difícil acceso, lo que lo convierte en una excelente opción para quienes buscan una solución habitacional ágil y adaptable.
Casa modular con estilo y funcionalidad!
Casa modular que destaca por su diseño contemporáneo, confort y versatilidad. Con una superficie construida desde 57 m², está conformada por 3 módulos prefabricados de 6.80 x 3.00 m. cada uno. Su distribución interior aprovecha al máximo el espacio, integrando 2 habitaciones, 1 baño completo y un área social abierta que une sala, cocina y comedor, ideal para compartir en familia o con amigos.
Su diseño prioriza la iluminación y ventilación natural gracias a una amplia mampara de vidrio templado que conecta el interior con la terraza. Confort y funcionalidad para hasta 6 personas, sino que además permite futuras ampliaciones, adaptándose a las necesidades de sus habitantes y demostrando el potencial de la arquitectura modular moderna.
Área total: Desde 57 m² (incluye terraza).
Dormitorios: 02
Baños: 01
El modelo Ibiza es uno de los más solicitados y tenemos diseñadas varias versiones incluyendo más habitaciones o cambios en la configuración. Además, en cualquiera de nuestros modelos se pueden elegir los revestimientos o acabados que mejor se adapten a la ubicación de la casa y a los gustos del cliente.
Arquitectura que inspira, confort que acoge!
Imponente casa modular de estructura metálica con una composición volumétrica que nos hace recordar a estilos europeos, el modelo Medellín es ideal para una casa de campo para pasarla con la familia y/o amigos.
En su versión básica cuenta con 3 dormitorios, 2 baños, 1 sala comedor, 1 cocina, 1 lavandería y 1 terraza en la fachada principal que facilita el ingreso de luz y ventilación natural.
Área total: Desde 81 m² (incluye terraza).
Dormitorios: 03
Baños: 02
El modelo Medellín se caracteriza por su techo a 2 aguas y sus acabados en tonos negros, con aplicaciones en madera y grandes ventanas para una buena iluminación.
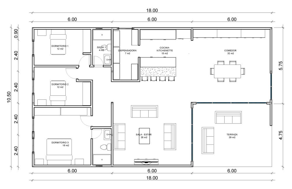
Tu hogar ideal, amplio y lleno de luz!
Experimenta el espacio y la comodidad en el modelo Castilla, una amplia casa modular diseñada para albergar hasta 5 personas con un total aproximado de 115 m2, incluyendo una amplia terraza. Con 4 habitaciones, 3 baños, cocina, lavandería y comedor, esta vivienda de diseño rectangular de un solo nivel ofrece un ambiente espaciosos, cómodos y funcionales para toda la familia.
Las amplias mamparas de vidrio templado al frente inundan el interior con luz natural, creando un ambiente luminoso y acogedor. Descubre la combinación perfecta de amplitud y luminosidad en el modelo Castilla, tu hogar ideal para crear recuerdos inolvidables.
Área total: Desde 115 m² (incluye terraza).
Dormitorios: 04
Baños: 03
Diseñada para quienes valoran el equilibrio entre confort y estética, la Castilla integra líneas modernas y acabados prácticos que facilitan el mantenimiento diario. Su estructura modular permite una instalación eficiente y adaptable, mientras que cada espacio ha sido pensado para maximizar la funcionalidad sin sacrificar estilo ni calidez.
Tu hogar ideal, amplio y lleno de luz!
Moderna casa modular que propone 1 bloque rectangular de altura uniforme emplazado de tal manera que genera desfases y 1 patio central. Con acabados limpios y formas regulares, el modelo Q1 destaca por su eficiencia y su lenguaje minimalista en composición volumétrica en el exterior y funcionalidad espacial en el interior.
El uso del patio interior funciona para ventilar e iluminar de manera natural, el pasadizo interior que conecta con los dormitorios también funciona al momento de unir módulos, si así se requiera. Además del patio, el Q1 cuenta con 3 dormitorios, 2 baños, 1 sala comedor, 1 cocina, 1 lavandería, 1 walking closet en el dormitorio principal, 1 patio central y amplia terraza ubicada de tal manera que este conectada directamente con el área social interior y exterior.
Área total: Desde 161 m² (incluye terraza).
Dormitorios: 03
Baños: 03
Estamos en capacidad de crear una diversidad de estilos arquitectónicos, para que disfrutes la casa de tus sueños. Nuestros modelos varían desde diseños modernos y minimalistas hasta opciones más tradicionales.
Espacios que se conectan, momentos que perduran!
Descubre nuestra moderna casa modular de mayor escala, perfecta para familias grandes. El modelo Valencia destaca por su diseño amplio y eficiente, ofreciendo 3 dormitorios, 2 baños, sala-comedor, una kitchenette y una encantadora terraza.
Esta última se integra perfectamente al área social interior gracias a amplias mamparas que permiten disfrutar de la iluminación y ventilación natural, creando un ambiente acogedor y luminoso.
Área total: Desde 189 m² (incluye terraza).
Dormitorios: 03
Baños: 02
Estamos en capacidad de crear una diversidad de estilos arquitectónicos, para que disfrutes la casa de tus sueños. Nuestros modelos varían desde diseños modernos y minimalistas hasta opciones más tradicionales.
¿Hay más modelos de casas?
Lo más habitual es diseñar un proyecto a medida, considerando las necesidades de cada cliente, su terreno, sus gustos y presupuesto. Porque sabemos lo importante y especial que es su casa para usted. Por eso aparte de estos modelos, ofrecemos el «Servicio de diseño y anteproyecto arquitectónico», con el que nuestro equipo de diseño trabaja de la mano del cliente para diseñar la distribución de la casa, seleccionar materiales y acabados, preparar vistas en 3D y elaborar el presupuesto. En estos casos, si finalmente el cliente decide realizar su proyecto con nosotros, el importe pagado por el diseño es descontado posteriormente del precio de la vivienda.
¿Las casas modulares son resistentes?
Sí, las estructuras de todas nuestras viviendas están diseñadas conforme a la normativa peruana 0.030 de diseño sismoresistente de acuerdo a su ubicación. Asimismo cumplen con todos los requisitos técnicos aplicables de acuerdo al Reglamento Nacional de Edificaciones, exactamente de la misma forma que la construcción tradicional.
¿Cómo es el precio respecto a la construcción tradicional?
La estandarización nos permite optimizar los precios respecto a la construcción tradicional, si bien finalmente el precio de una vivienda depende de los materiales y acabados escogidos, así sea el sistema constructivo modular o tradicional. Por tanto el precio no es un factor determinante, sino las otras ventajas como la rapidez, el precio cerrado sin imprevistos, menos trabajos en obra, etc.
¿Cuál es el tiempo de vida de las casas modulares?
Todas las estructuras se realizan en acero galvanizado que ofrece un tiempo de vida garantizado superior a los 50 años. El resto de materiales que normalmente utilizamos son los propios de la construcción en seco como paneles de fibrocemento o yeso, paneles termoaislantes metálicos, etc. Todos los materiales y acabados que utilizamos son de marcas reconocidas en Perú. Por tanto el tiempo de vida de nuestras viviendas, con un adecuado mantenimiento, es igual o superior a las viviendas en construcción tradicional.
¿Las casas modulares requieren cimentación?
Sí, existen diversas formas de ejecutar la cimentación de las viviendas, desde apoyos de madera o concreto, muretes o vigas de cimentación en ladrillo o concreto, micropilotes o tornillos de cimentación. Nuestros ingenieros le recomendarán la opción más adecuada para su proyecto y la capacidad portante o características del terreno. En todo caso al tener un menor peso que la construcción tradicional (estructura de acero en lugar de concreto, o paredes de drywall en lugar de ladrillo, etc) la cimentación necesaria siempre es menor y por tanto más económica.
¿Es confiable el sistema constructivo modular?
Sí, es un sistema ya comprobado a nivel internacional, en otros países de Europa, Japón, China o Estados Unidos, la mayor parte de la construcción residencial así como comercial o industrial se realiza con sistemas modulares. La construcción modular es una tendencia imparable en el mundo por las ventajas que ofrece.
¿Cuántos pisos se pueden construir?
Aunque los modelos que aparecen en esta página son de un piso, nuestras estructuras estándar están calculadas para dos niveles según la normativa de sismoresistencia. Sin embargo con estructuras calculadas a medida hemos realizado proyectos de edificios modulares de hasta cinco pisos en Perú.
¿Cuáles son los acabados interiores y exteriores?
Depende del modelo o diseño de casa personalizado, por ejemplo trabajamos con revestimientos porcelánicos en pisos, paredes interiores y cielos rasos en yeso con pintura blanca, papel tapiz o revestimientos vinílicos, muebles de melamine en cocinas y baños, tableros de granito en cocinas. En definitiva el cliente puede escoger cualquier material o acabado exactamente igual que en la construcción tradicional.
Para los muros exteriores utilizamos planchas de fibrocemento con distintos acabados como tarrajeo en mortero, revestimiento cerámico, plancha metálica tipo standing seam, revestimiento en madera o wall panel de PVC. El cliente cuenta con el asesoramiento de nuestro equipo de diseño para escoger los materiales más adecuados a sus gustos y presupuesto.
¿Se puede visitar la planta de fabricación?
Sí, contacta con nosotros para agendar una visita para conocer nuestras instalaciones y comprobar nuestra capacidad productiva.
¿Puedo solicitar cotización de un modelo personalizado?
Sí, y de hecho es lo más habitual. Si usted ya tiene unos planos o referencias de la casa y desea que lo coticemos con nuestro sistema, ofrecemos nuestro «Servicio de diseño y anteproyecto arquitectónico», con el que nuestro equipo de diseño trabaja de la mano del cliente para diseñar la distribución de la casa, seleccionar materiales y acabados, preparar vistas en 3D y elaborar el presupuesto. En estos casos, si finalmente el cliente decide realizar su proyecto con nosotros, el importe pagado por el diseño es descontado posteriormente del precio de la vivienda.
¿Disponen de otros sistemas constructivos más tradicionales?
Sí, además de nuestro sistema modular típico, habitualmente realizamos proyectos con sistemas constructivos prefabricados o modulares fijos, incluso sistemas híbridos que pueden combinar por ejemplo estructuras de acero con cerramientos de bloques de concreto o ladrillo. Nuestros arquitectos trabajan con el cliente para ofrecer la solución que mejor se adapte a cada proyecto.